Склад в аренду!
Стоимость аренды
400000
руб./месяц
Арт. 110481128 Сдается производственное/складское помещение
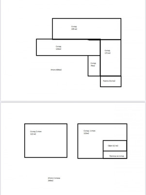
по адресу: ул. Дерюгиной, 9б Два входа, складская зона с погрузочной зоной. Удобные транспортные развязки, места с подьездом длинномеров, наличие парковочных мест. Любой вид деятельности.Размещение торговых площадок складского и производственного типа. Все помещения сухие, чистые с бетонными полами.Помещения с рампами. Коммуникации: электричество, вода, канализация Аренда без комиссии и скрытых платежей для арендатора! #8856175# Общая стоимость: 400000 руб./месяц Этаж/этажность: 1/2 Агентам: Не звонить |
2171216 14 Июля 2025 просмотров 36 |
Добавить комментарий
Похожие объявления






















